
近日
据太原市行政审批服务管理局发布
太原这一回迁房规划证获批
建设位置位于万柏林区——
近8万平方米!
太原圪㙩沟回迁房规划证
获批
2025年12月30日,太原市行政审批服务管理局发布公告,依法审查核准了新建圪㙩沟回迁安置房城中村改造工程项目地块一、地块二建设工程规划许可证。
项目建设单位为太原市柏林宝地建设开发有限公司,建设位置均位于万柏林区。其中,地块一位于开城路以南、规划路以北、西外环以东、上庄北路以西。地块二位于规划路以南、上庄街以北、西外环以东、上庄北路以西。地块一规划建楼17栋,地块二规划建楼6栋。除一栋外,均为高层建筑。两地块均配建有地下车库,总建筑面积接近8万平方米。
当日,太原市行政审批服务管理局还依法审查核准了新建圪㙩沟回迁安置房城中村改造工程项目幼儿园地块幼儿园建设工程规划许可证。该园位于地块一以南、以东、以西,规划路以北。总建筑面积3873.66平方米。(来源:太原晚报)
总投资超2.1亿元
太原这五条道路
即将启动建设
2025年12月31日,太原市官方密集发布了4条道路的建设招标计划,这4条道路即将启动建设!
1.健康西路北延

本项目为新建城市支路,位于太原市晋源区。道路起点接龙城大街,终点至滨湖街,全长约0.54km,红线宽度20米,道路走向为南北向。用地面积约1.07公顷。

标准横断面为中间13米机动车道,两侧各3.5米人行道(含树穴)。
建设内容包含道路工程、交通工程、排水工程、照明工程、公安天网工程、电力工程、绿化工程及地下管线综合工程等;项目总投资2445.6万元.
该条道路位于泰禾金尊府项目西侧,预计为泰禾金尊府的配套道路。
2.坞城中路

坞城中路建设工程(针织街一荣军北街)由太原市城乡基础设施建设中心建设,建设地点位于太原市小店区,坞城路以西,针织街以南,龙城北街以北,军民南路以东。
项目建设内容包括道路工程、排水工程、照明工程、电力工程、交通工程、公安天网系统工程、市政综合管线工程及绿化工程等。
坞城中路位于太原市小店区,北起针织路,南至荣军北街后向西与现状坞城西路顺接,道路可分为两段,即坞城中路和荣军北街(与现状道路顺接段)。坞城中路设计长度为322.75米,荣军北街设计长度为251.737米,总长为574.487米,两条道路规划红线宽均为 30米,道路性质为城市次干路。

项目总投资3070.99万元。
3.马庄东路、规划一路

马庄东路南起南十方街东延,北至规划一路,道路全长约960米,规划红线宽30米,为城市次干路,总用地面积约3.1公顷。
规划一路西起马庄东路,东至东山大道,道路全长约810米,规划红线宽20米,为城市支路,总用地面积约1.6公顷。

马庄东路中间21米车行道,两侧各4.5米人行道(含1.5米树穴带)。

规划一路中间13米车行道,两侧各3.5米人行道(含1.5米树穴带)。

建设内容主要包括道路工程、排水工程、照明工程、电力工程、交通工程、绿化工程、公安天网系统及市政综合管线工程等。项目总投资12642.85万元。
4.香颂棠悦小区东侧30米规划路

香颂小区东侧30米规划路北起光明东街,南至西峰街,道路全长约,规划红线宽30米,为城市次干路,总用地面积约1.35公顷。

道路横断面布置为中间21米车行道,两侧各为4.5米人行道(包括1.5米树穴带)。

建设内容主要包括道路工程、排水工程、照明工程、电力工程、交通工程、绿化工程、公安天网系统及市政综合管线工程等。项目总投资3712.61万元。(来源:住在太原)
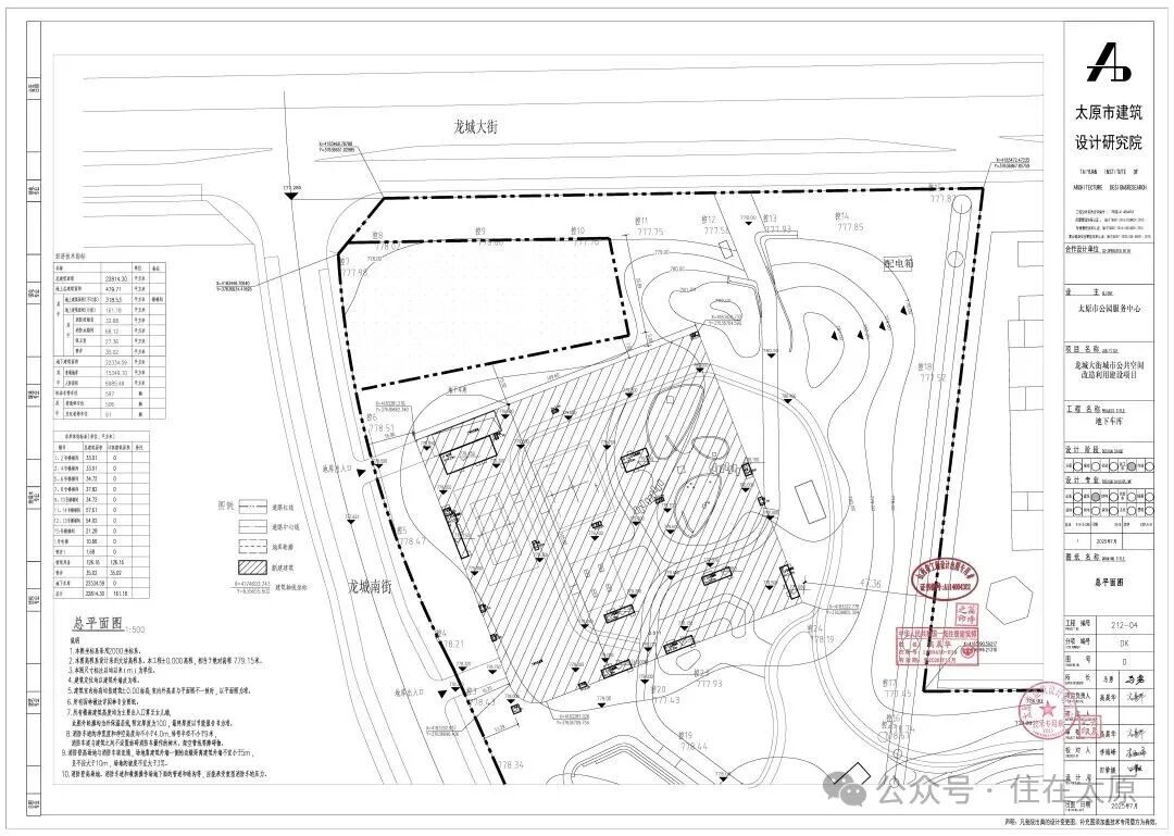
太原龙城公园新建项目获批
龙城公园是太原南部区域最大的市属公园,位于太原市小店区长治路和龙城大街交汇处,北起龙城大街,南至龙城南街,东临规划路,西至龙城环路。

公园总占地面积为26万平米(约390亩),分为东区(17.6万平方米)和西区(8.4万平方米)两部分,西区于2023年7月1日开放,东区于2023年12月29日正式开放。

2025年4月,官方发布了龙城大街城市公共空间改造利用建设项目群众意见征询调查公示。

公示显示将在龙城公园西区建设地下停车场及地上附属建筑的土建工程、安装工程、公用配套工程及设备购置等工程。本项目总投资为18629.58万元,建设期限共12个月。并在2025年9月再次发布了关于太原市龙城大街城市公共空间改造利用建设项目建设工程规划设计方案的公示。

直到近日(2025年12月31日),官方发布了关于龙城大街城市公共空间改造利用建设项目建设工程规划许可证的公告。

项目名称:龙城大街城市公共空间改造利用建设项目


建设单位:太原市公园服务中心

建设位置:小店区龙城大街以南、康悦路以东、长治路以西


(来源:住在太原)
尽管行业艰难
但2025年还是有4家房企
迈入2000亿元阵营
TOP10门槛守住“千亿”——
2025年千亿销售房企共10家
保利发展蝉联销冠
12月31日,中指研究院、克而瑞、亿翰智库等机构发布2025年房地产企业业绩。据中指研究院,保利发展、绿城中国、中海地产、华润置地4家房企全年销售额均超2000亿元。其中,保利发展2530亿元、绿城中国2519亿元、中海地产2512亿元、华润置地2336亿元。
中指研究院企业研究总监刘水分析指出:“2026年是‘十五五’开局之年,短期内仍处于调整期,房地产企业债务重组加快推进,保交房任务全面完成,房地产风险有望加速出清。部分房企凭借强劲的经营韧性,稳固销售规模基本盘,保持拿地节奏,将是支撑行业平稳运行的中流砥柱。”
单月业绩环比涨超100%
亿翰智库统计结果显示,2025年12月,105家典型房企中,近七成房企全口径销售金额环比增长;近50%企业单月销售额环比涨幅超过20%;越秀地产、中建壹品、仁恒置地等企业单月业绩环比涨幅超过100%。
此外,两成企业单月销售金额同比增长,华润置地、中建壹品、卓越集团等同比涨幅超过15%。
从单月表现来看,华润置地位于上海和深圳的“沄”系产品,分别在开盘当天取得亮眼表现,带动单月销售业绩超过400亿元;中海地产紧随其后,单月销售额为398亿元。
“千亿房企”们抓住核心改善需求,在多个核心城市推出热销项目,如保利发展在广州热销项目TOP10中占据前列,建发房产在北京、上海、广州、成都等地有多个项目进入热销项目TOP10。
53家房企连续5年位列百强
从中指研究院对典型房企的业绩透视来看,滨江集团、龙湖集团、大华集团、新希望地产等经营相对稳健的民企,在保持销售业绩的同时维持一定投资规模。
而出险的民营房企,如碧桂园、融创等尽管面临经营困境,销售规模萎缩,但仍在百强之列。这是因为前期土储保障了一定的销售规模,给债务重组提供了偿债资金来源,也为未来转型轻资产业务奠定了基础。
中建系企业异军突起,部分地方国企则抓住政策机遇,实现了较快销售去化。兴耀房产集团、建杭置业、润达丰滨江等区域性民营房企聚焦本土及周边高能级城市,通过“小而美”的精准布局,或与头部房企等合作方联合拿地,减少资金压力,同时严控成本。
“2021—2025年,连续位列百强的房企有53家,其中10家“千亿房企”开发经营能力强,具有融资、投资、产品、公司治理等多方面优势;部分区域深耕型地方国企和民企聚焦本土市场,也有一定发展潜力。近两年,连续入榜销售额TOP100和拿地金额TOP100的房企有30家。”刘水指出。
“未来五年,全国新建住宅年均销售面积预计保持在7亿—8亿平方米,城市间分化加剧。从国际经验来看,即使在主要发达经济体中,房地产历经百年发展,仍普遍承担着重要支柱产业的角色。总体来看,随着市场预期逐步改善,在经历供求大幅缩量和房价明显回调后,‘十五五’中后期市场有望逐步筑底企稳。”刘水表示。(来源:每日经济新闻)
万科所持2.5亿股权被冻结
此前其57亿元债券展期方案被否
1月4日,界面新闻从天眼查APP获悉,日前万科企业股份有限公司(简称万科)新增一则股权冻结信息,股权所在企业为万纬物流发展有限公司,冻结股权数额2.5亿元人民币,冻结期限为3年,执行法院为江苏省徐州市中级人民法院。

万纬物流发展有限公司成立于2017年12月,法定代表人为吴蓓雯,注册资本约330.5亿人民币,经营范围包括普通货物仓储服务、国内货物运输代理、供应链管理服务等。股东信息显示,该公司由万科、Dahlia Investments Pte.Ltd、Reco Meranti Private Limited等共同持股。
天眼查APP数据显示,截至1月4日,万科有13条股权冻结信息。据界面新闻不完全统计,其被冻结股权数额超过20亿元。
万科目前深陷债务危机。2025年12月下旬,万科两笔合计57亿元的债券展期方案均未获通过。其中,“22万科MTN004”数额为20亿元,“22万科MTN005”数额37亿元。
2025年12月31日,万科发布公告称,截至目前,发行人存续债券“22万科 MTN004”和“22万科 MTN005”均未能按债券条款约定期限足额偿付本金和利息,已分别进入为期30个工作日的宽限期(届满日分别为2026年1月28日和2026年2月10日),其他存续债券暂未发生违约情况,但“22万科 MTN004”和“22万科 MTN005”延期偿付本金和利息的情形已表明发行人存在较大的偿债压力,公司债券偿付存在较大不确定性。
公开数据显示,上述两笔中票仅是2025年内万科将面临的到期债务,2026年其到期或行权的债券规模还有124.19亿元。截至2025年9月底,万科有息债务为3629亿元,处于历史最高值;债务结构上,据万科半年报披露,一年内有息债务占比42.7%,现金短债比仅0.48。如果剔除货币资金中受限制部分,债务压力会更大。(来源:界面新闻)