

唐末宋初,中原混战,朝代更迭,先后改朝换代有梁唐晋汉周,合为五代。与之同时期,南方九国加之北方北汉,合为十国。这一短暂的时间,保留的木构建筑仍有唐代遗风,更显弥足珍贵。
相比唐代木构建筑,五代建筑名录并无一基本共识。旧曰四大木构:龙门寺西配殿、大云院弥陀殿、镇国寺万佛殿、正定文庙大成殿。前三座有确定纪年,后一因为梁先生所断,亦为学界接受。近年来,因天台庵弥陀殿维修时发现后唐题记,则合为五座。
另有三座建筑,年代尚有争议,大抵为五代至宋:布村玉皇庙中殿、碧云寺正殿、原起寺大殿。考虑到前两座自发现起观点不一尚无定论,而后一发现较早旧识宋构,则本文择列前两座,而原起寺大殿则列至北宋建筑。
关于五代时间的界定,因“五代”、“十国”起止年月不统一,若按“五代”划分,陈桥兵变于960年,如是则平遥镇国寺万佛殿不当列为五代建筑;若按“十国”划分,福州华林寺大殿亦不当列为北宋建筑。本文仍择列万佛殿于此而择华林寺大殿于后文,一来因南北方建筑差异,二来吴越中后期不立年号尊中原正朔,归入北宋亦可解。
本文除引各公开出版测绘图纸外,亦引网友爱好者所发博文图片,在此深表感谢。

1 平顺龙门寺西配殿

建于 后唐同光三年(925年)
第4批全国重点文物保护单位
位于山西省长治市平顺县石城镇源头村









锦阳轩主 摄
图片引自冯冬青(1994)、耿昀(2017)
2 平顺天台庵弥陀殿

建于 后唐长兴四年(933年)
第3批全国重点文物保护单位
位于山西省长治市平顺县北耽车乡王曲村











锦阳轩主 摄
图片引自王春波(1993)
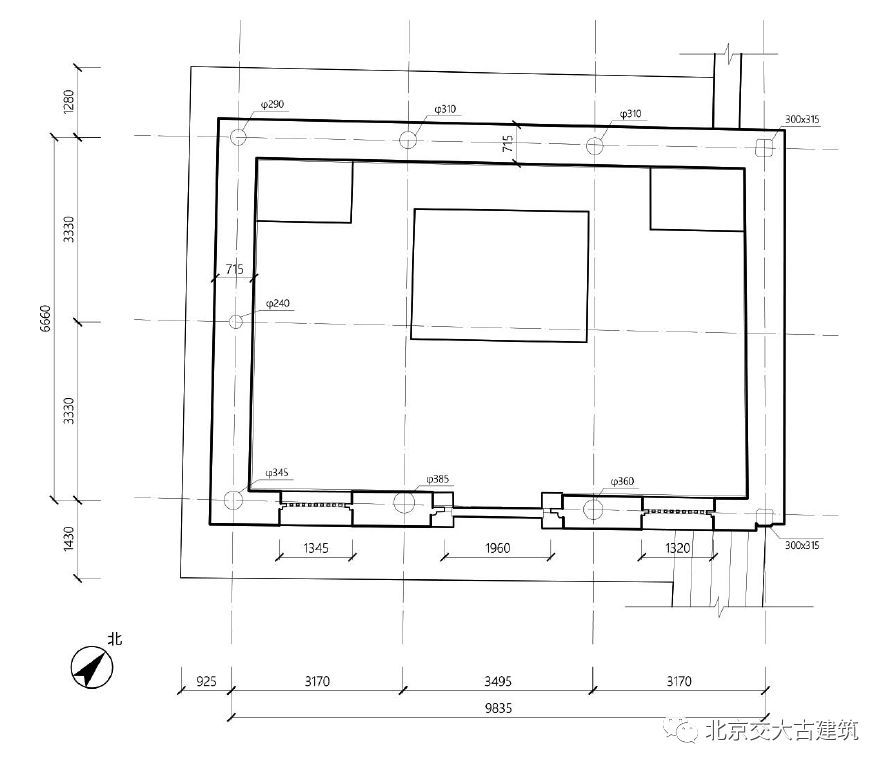
3 平顺大云院弥陀殿

建于 后晋天福五年(940年)
第3批全国重点文物保护单位
位于山西省长治市平顺县北耽车乡实会村









锦阳轩主 摄
引自贺大龙(2008)、李百进(2015)
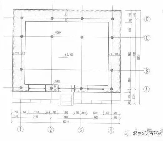
4 平遥镇国寺万佛殿

建于 北汉天会七年(963年)
第3批全国重点文物保护单位
位于山西省晋中市平遥县襄垣乡郝洞村









锦阳轩主 摄/第一图引自网络
图片引自李百进(2015)
5 正定文庙大成殿

推断建于五代
第4批全国重点文物保护单位
位于河北省石家庄市正定县育才街






锦阳轩主、新浪网友“風清航_勤而行之”摄
图片引自梁思成(1933)
6 布村玉皇庙中殿

推断建于五代
【计有唐、五代、北宋等多家学说】
第7批全国重点文物保护单位
位于山西省长治市长子县慈林镇布村










照片转自微信公众号“爱塔传奇”、“宜宾客123”
图片引自徐怡涛&苏林(2009)
7 小张村碧云寺正殿

推断建于五代
【官方公布时代为宋,亦有文献断为五代】
第7批全国重点文物保护单位
位于山西省长治市长子县丹朱镇小张村










照片引自蚂蜂窝网友“小憨”
图片引自贺大龙(2008)
